Come semplificare il rapporto tra committente, geometra, ingegnere e operai in un cantiere?
Ho sviluppato una proposta iniziale; una volta approvata dal cliente, ho disegnato le informazioni utili a tutti per avere il “quadro d’insieme” e procedere speditamente e senza indugi nello svolgere il proprio lavoro.
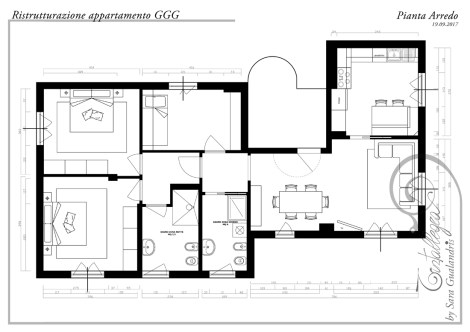
Ecco come da una pianta realizzata in AutoCad si possono ottenere le disposizioni degli arredi, dei punti luce, della posa dei pavimenti e dei rivestimenti nei bagni!
Un bell’aiuto per GGG!

PROJECT FOR A GGG APARTMENT
How can the relations between client, surveyor, engineer and workers be simplified in a building site?
I developed a first proposal. Once approved by the client, I drew the information that was useful for all the parties involved, so as to have a general overview and proceed with the job quickly.
Here is how a plan realized with AutoCad can give full information on the location of furnishings, lighting points, floors, bathroom coatings.
An invaluable help for the GGG!